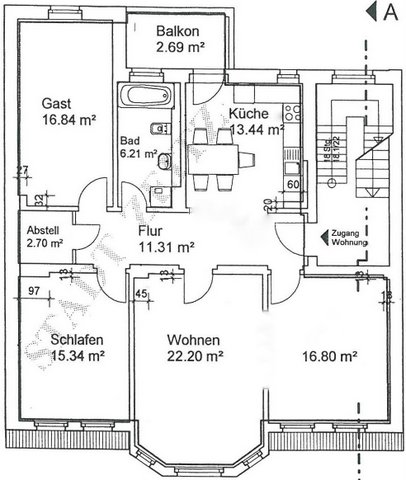
Dies ist der Grundriss der Wohnung im Erdgeschoss.

Eine Besonderheit ist das besonders grosszügig geschnittene Wohnzimmer.

 

 

HOME
BESCHREIBUNG

Dieser Grundriss zeigt die Variante mit drei Zimmern und offenem Wohn- Essbereich.

Die Wohnung umfasst ca. 107qm.

Wohnungen mit diesem Grundriss befinden sich im 1. und 2. Obergeschoss.

KONTAKT

IMPRESSUM
 

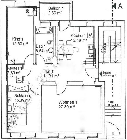
Hier abgebildet ist die Grundriss-Variante mit vier Zimmern.

Diese Wohnung hat ebenfalls 107qm und kann im 1. und 2. Obergeschoss realisiert werden.